02.491.3650

  • 상담시간 : AM09:00 ~ PM6:00
  • E-mail : skagudgh77@naver.com

ING PROJECT

[계약]덕이동 김밥천국 리모델링 18평

페이지 정보

작성자 시엘디자인 댓글 0건 조회 3,566회 작성일 20-02-18 13:29

본문

[계약]덕이동 김밥천국 리모델링 18평 

 

몇해전에 시공해드린 덕이동 김밥천국이 내부 리모델링에 들어갑니다.

 

 

2255ef8f5c5a43c8aeaf501ba6eb6dbc_1582000004_08.png

 

새로오신 점주님께서 이번에 인수하셔서 새롭게 단장할 예정인데요.

다른곳에 리김밥도 운영중이시라, 운영능력이나 음식솜씨는 최고입니다.

 

 

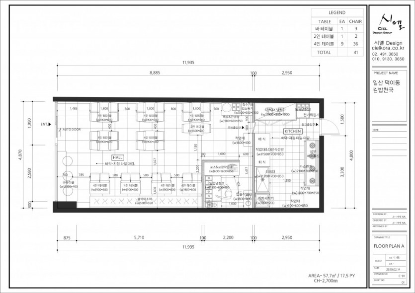
2255ef8f5c5a43c8aeaf501ba6eb6dbc_1582000004_21.png

 

예전 덕이동 도면입니다. 구조와 전체적인 분위기가 확 바뀔예정이고

공사는 이미 진행중입니다.

완공후 갤러리에서 뵙겠습니다.

 

2255ef8f5c5a43c8aeaf501ba6eb6dbc_1582000005_77.jpg 

 

2255ef8f5c5a43c8aeaf501ba6eb6dbc_1582000032_25.jpg

등록된 댓글이 없습니다.
  • 상호:시엘디자인
  • 대표:남형호
  • 전화:02.491.3650 / 070.8726.9166
  • 휴대폰:010.9130.3650
  • 팩스:02.491.3653
  • 이메일:skagudgh77@naver.com
  • 사업자204-25-86355
  • 주소:서울특별시 중랑구 중랑천로14길 58 범양프레체 207호