02.491.3650

  • 상담시간 : AM09:00 ~ PM6:00
  • E-mail : skagudgh77@naver.com

ING PROJECT

[계약] 답십리 달떡볶이 배달포장전문점

페이지 정보

작성자 시엘디자인 댓글 0건 조회 3,424회 작성일 20-05-29 14:04

본문

[계약] 답십리 달떡볶이 배달포장전문점

 

요즘 배달의민족이나, 요기요같은 배달어플이 비중이 커지면서

배달/포장 전문으로 문의가 많이 들어옵니다.

 

 

c61e1aa7269bc89fbfb9da9c6b3c3a11_1590728407_24.jpg

 

배달전문점 고덕점달떡볶이에 이어 이번에는

답십리 달떡볶이가 오픈합니다.

 

 

c61e1aa7269bc89fbfb9da9c6b3c3a11_1590728407_62.jpg

 

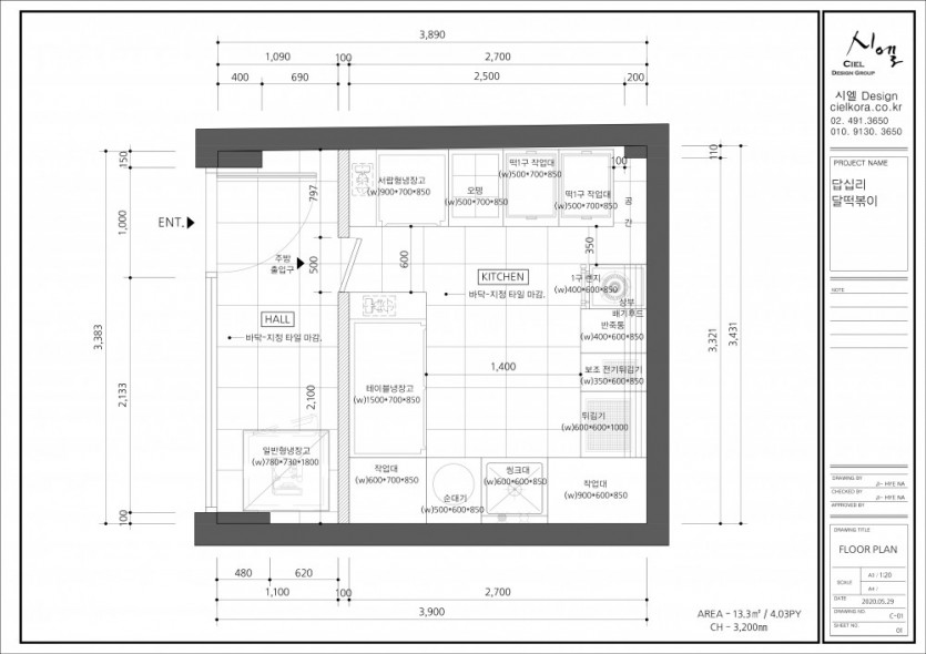
도면작업이 끝나고 철거후 공사 바로 시작합니다.

이번에도 한눈에 쏙 들어오는 달떡볶이로 찾아뵙겠습니다.

 

 

c61e1aa7269bc89fbfb9da9c6b3c3a11_1590728427_01.jpg
c61e1aa7269bc89fbfb9da9c6b3c3a11_1590728437_83.jpg
 

등록된 댓글이 없습니다.
  • 상호:시엘디자인
  • 대표:남형호
  • 전화:02.491.3650 / 070.8726.9166
  • 휴대폰:010.9130.3650
  • 팩스:02.491.3653
  • 이메일:skagudgh77@naver.com
  • 사업자204-25-86355
  • 주소:서울특별시 중랑구 중랑천로14길 58 범양프레체 207호