02.491.3650

  • 상담시간 : AM09:00 ~ PM6:00
  • E-mail : skagudgh77@naver.com

ING PROJECT

[계약] 미아현대백화점 최대섭대박김밥

페이지 정보

작성자 시엘디자인 댓글 0건 조회 3,415회 작성일 20-05-29 14:17

본문

[계약] 미아현대백화점 최대섭대박김밥 

 

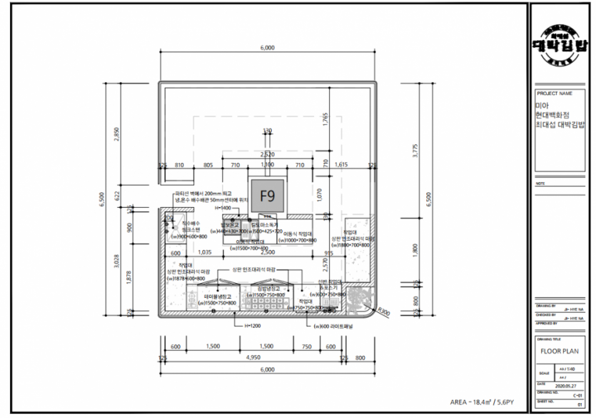
미아현대백화점 지하 1층 식품관이 전체 리뉴얼이 들어가면서

최대섭 대박김밥이 새로 입점합니다.

 

 

c61e1aa7269bc89fbfb9da9c6b3c3a11_1590729067_91.jpg

 

 

천호 현대백화점 입점을 도와드렸는데

이번에도 이렇게 저희 시엘을 찾아주셨어요~

 

 

 

c61e1aa7269bc89fbfb9da9c6b3c3a11_1590729070_24.jpg

 

전체적으로 다시 손봐드린 3D와 도면

공사는 벌써 마무리 단계입니다.

 

 

c61e1aa7269bc89fbfb9da9c6b3c3a11_1590729075_15.jpg
c61e1aa7269bc89fbfb9da9c6b3c3a11_1590729075_44.png
깔끔하고 멋스러운 인테리어로 갤러리에서 뵙겠습니다.

 

 

 

c61e1aa7269bc89fbfb9da9c6b3c3a11_1590729110_93.jpg
호와 평수는 꼭 남겨주세요 ^^

 

등록된 댓글이 없습니다.
  • 상호:시엘디자인
  • 대표:남형호
  • 전화:02.491.3650 / 070.8726.9166
  • 휴대폰:010.9130.3650
  • 팩스:02.491.3653
  • 이메일:skagudgh77@naver.com
  • 사업자204-25-86355
  • 주소:서울특별시 중랑구 중랑천로14길 58 범양프레체 207호