02.491.3650

  • 상담시간 : AM09:00 ~ PM6:00
  • E-mail : skagudgh77@naver.com

ING PROJECT

[계약] 인천 얼레꼴레 떡볶이전문점 31평

페이지 정보

작성자 시엘디자인 댓글 0건 조회 2,501회 작성일 21-10-04 11:39

본문

[계약] 인천 얼레꼴레 떡볶이전문점 31평

 

인천 3대떡볶이맛집이라고 알려져있는 얼레꼴레입니다.

유명한 맛집이라 한곳에서 오랫동안 운영하셨는데요.

 

 

c20c3ab9a01ffb1714c09dd4b66c7fd9_1633314979_39.jpg

 

오랜세월 맛집인만큼 내외부가 세월이 느껴집니다.

재개발로 옆 신축건물로 이전하시는데요 ^^

신축이라 바로 공사들어갑니다.

 

 

 

c20c3ab9a01ffb1714c09dd4b66c7fd9_1633315743_33.jpg
 

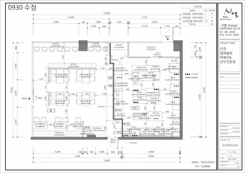
주방동선과 홀 공간배열등 전체적으로 도면작업은 완료되었구요~

3D모델링만 조금더 손봐서 진행됩니다.

 

c20c3ab9a01ffb1714c09dd4b66c7fd9_1633315741_59.jpg
 

 

 완공 후 갤러리에서 바로 찾아뵐게요.


 

 

c20c3ab9a01ffb1714c09dd4b66c7fd9_1633315004_36.gif
 

등록된 댓글이 없습니다.
  • 상호:시엘디자인
  • 대표:남형호
  • 전화:02.491.3650 / 070.8726.9166
  • 휴대폰:010.9130.3650
  • 팩스:02.491.3653
  • 이메일:skagudgh77@naver.com
  • 사업자204-25-86355
  • 주소:서울특별시 중랑구 중랑천로14길 58 범양프레체 207호