[계약] 분당 제생병원 백나예김밥 직영점
페이지 정보
작성자 시엘디자인 댓글 0건 조회 1,964회 작성일 24-02-16 13:06본문
[계약] 분당 제생병원 백나예김밥 직영점
분당의 핫플맛집으로 유명한 백나예김밥이 이번에 직영점으로 또하나의 매장으로 찾아옵니다.
정말 김밥으로는 너무 유명한 김밥전문점입니다.
제생병원 건물내에 신축으로 들어가구요~ 병원내에 매장이라 상권은 두말할필요없습니다.^^
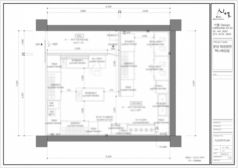
공사는 이번주 도면수정작업후 다음주에 바로 들어갑니다.
백나예김밥은 초기부터 쭉 저희 시엘과 함께 하시는데요 ^^ 이번 매장역시 저희시엘에 맡겨주셔서 감사합니다.
밑에는 저희가 작업중인 도면인데 살짝만 보여드려요 ^^
2월달부터 공사가 한꺼번에 겹쳐 정말 바쁜데요 ^^
일정에 맞게 꼼꼼하고 체계적으로 공사진행후 완공갤러리에서 찾아뵙겠습니다.

등록된 댓글이 없습니다.