[계약] 수원 장안구 조선육회
페이지 정보
작성자 시엘디자인 댓글 0건 조회 1,913회 작성일 24-03-08 11:48본문
[계약] 수원 장안구 조선육회
항상 꾸준한 인기몰이중인 조선육회가 이번에는 수원 장안구에 오픈합니다.
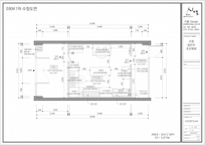
10평이구요~ 주상복합상가에 들어가 상권이 정말좋습니다.
약국자리에 들어가고 구조도 너무좋아 바로 공사들어갑니다.
기존에 상가들이 빈상가없이 학원가부터 먹을거리도 많아서 정말 기대되는매장입니다.
전체 철거후 바로 공사진행하구요~ 주방동선과 홀부분 도면작업이 마무리단계입니다.
조선육회는 꾸준하게 저희 시엘과 함께하는 육회브랜드로 정말 핫한곳중 하나입니다.
창업을 준비하시는 분들이나 창업아이템 고민이신분들은 조선육회 저희 시엘에서 추천합니다.^^
상담은 언제든지 가능하니 연락주세요.

등록된 댓글이 없습니다.