[계약] 신월동 서서울시장 떡볶이전문점 13평
페이지 정보
작성자 시엘디자인 댓글 0건 조회 1,874회 작성일 23-09-20 13:56본문
[계약] 신월동 서서울시장 떡볶이전문점 13평
신월동 서울시장 안쪽 원래 의류매장이였던 곳에 떡볶이전문점이 들어갑니다.
안쪽으로는 주방, 밖으로는 판매하는곳으로 할 예정이구요~
앞쪽에 공간도 넉넉하고 도면작업도 내부 외부 다 완성되어 공사 바로 들어갑니다.
공실이라 따로 큰 철거는 필요없이 간판과 앞쪽만 철거후 진행됩니다.
의류매장이다보니, 내부는 바닥부터 방수공사까지 꼼꼼하게 진행할 예정입니다.
시장안에 있는 매장이라 유동인구는 뭐 말할것도없구요 ^^
깔끔하게 진행해보겠습니다.
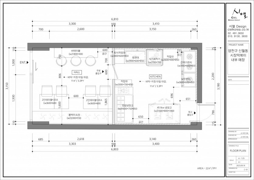
밑에는 저희가 제시해드린 내부도면입니다.
최적의 동선으로 주방집기들을 구성했어요.
완공후 갤러리에서 찾아뵙겠습니다.

등록된 댓글이 없습니다.