02.491.3650

  • 상담시간 : AM09:00 ~ PM6:00
  • E-mail : skagudgh77@naver.com

ING PROJECT

[계약] 모밀엔카츠 사가정점 3호점 15PY

페이지 정보

작성자 시엘디자인 댓글 0건 조회 2,591회 작성일 21-11-05 12:55

본문

[계약] 모밀엔카츠 사가정점 3호점 15PY 

 

모밀엔카츠는 구리본점부터 시작해서 신내점 

그리고 이번에 사가정점에 오픈합니다.

 

본점부터 쭉 이어져온 인연으로 3호점도 저희 시엘에 맡겨주셨어요.

 

 

 

 

19ac85d86c1d5ee5a5815fd75d9628e9_1636079652_63.jpg
 

 

번화가에 위치해있어 유동인구가 좋아 기대되는 매장입니다.

다음주부터 공사 진행되구요 ^^ 모밀엔카츠 컨셉을 살리되 더욱 멋스러운 3호점으로 바뀔예정입니다.

 

 

19ac85d86c1d5ee5a5815fd75d9628e9_1636084585_57.jpg

 

 

 

 

19ac85d86c1d5ee5a5815fd75d9628e9_1636079653_19.jpg
 

 

 

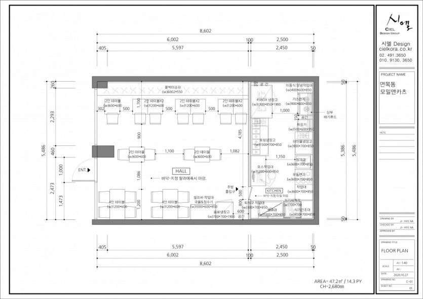
밑에는 저희가 작업한 도면입니다.

전체적인 공간의 짜임과 많이들 어려워하시는 주방동선까지

깔끔하게 도면작업후 도면대로 공사가 진행됩니다.

 

 

19ac85d86c1d5ee5a5815fd75d9628e9_1636079675_92.jpg 

 완공후 갤러리에서 찾아뵙겠습니다.

 

19ac85d86c1d5ee5a5815fd75d9628e9_1636079690_55.jpg

등록된 댓글이 없습니다.
  • 상호:시엘디자인
  • 대표:남형호
  • 전화:02.491.3650 / 070.8726.9166
  • 휴대폰:010.9130.3650
  • 팩스:02.491.3653
  • 이메일:skagudgh77@naver.com
  • 사업자204-25-86355
  • 주소:서울특별시 중랑구 중랑천로14길 58 범양프레체 207호